Porzione di bifamiliare in vendita

Caldogno, Via Dante Alighieri
€ 388.000
Prezzo aggiornato
5 locali 5 locali
250 Mq 250 Mq
4 bagni 4 bagni

Porzione di bifamiliare in vendita

Caldogno, Via Dante Alighieri

Descrizione annuncio

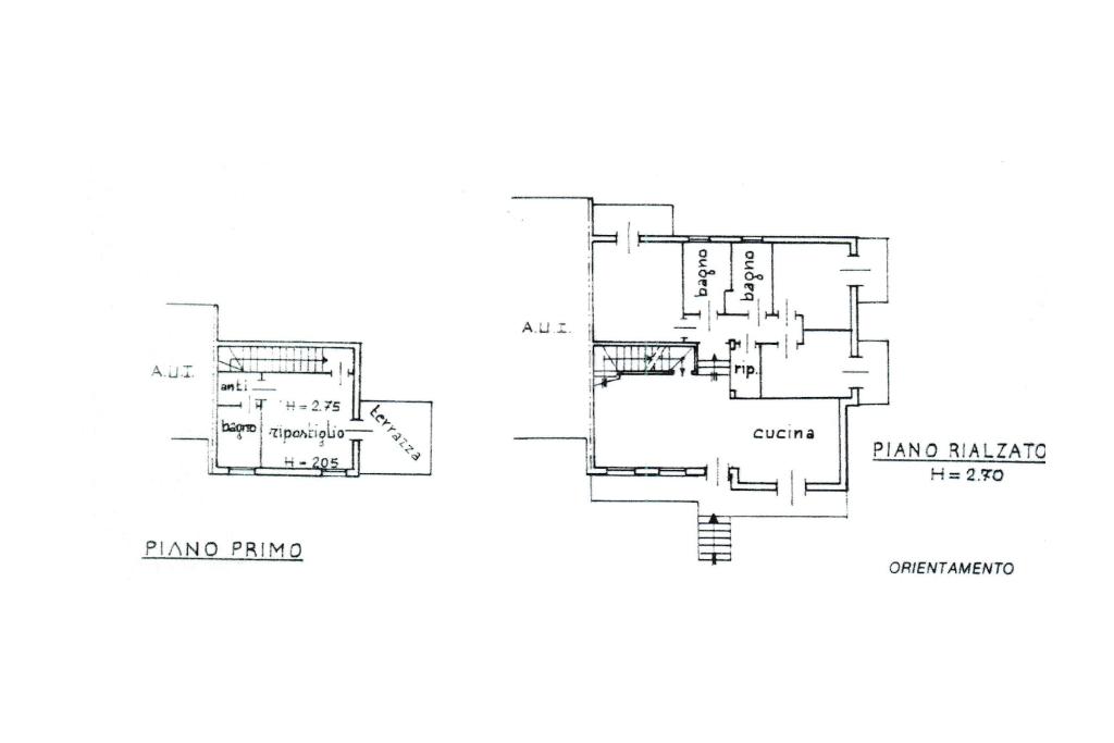
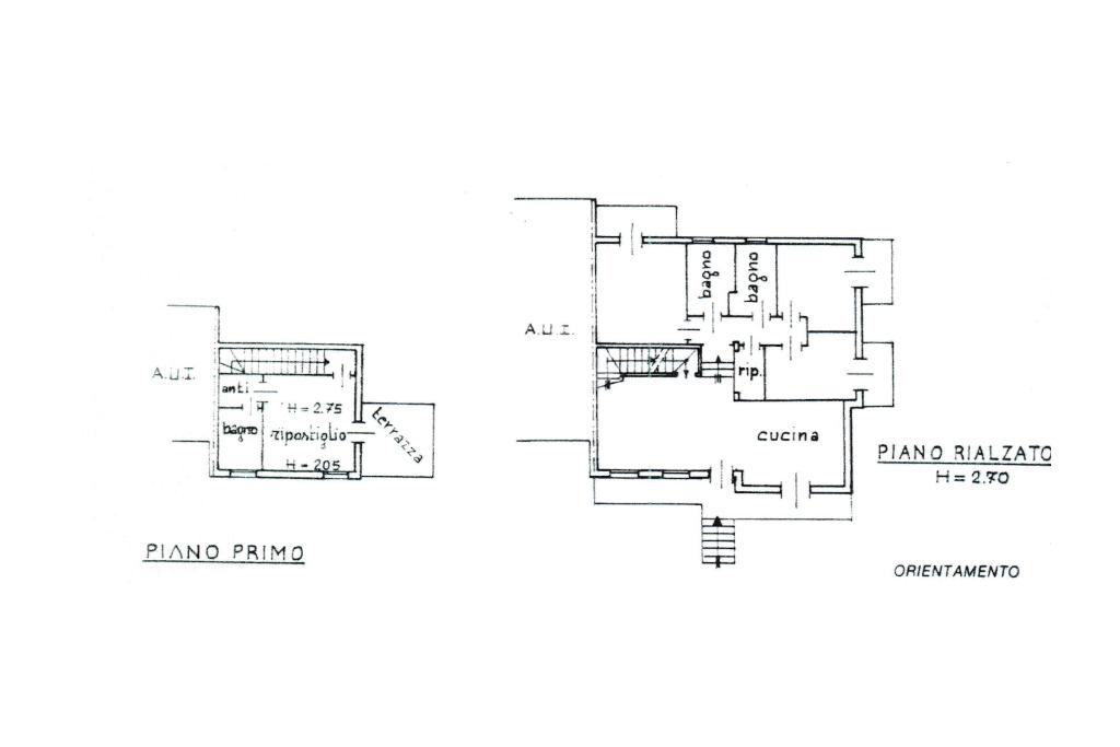
Caldogno - proponiamo in vendita una porzione di bifamiliare che offre ampi spazi e comfort. Con una superficie oggi invidiabile, questa abitazione terminata nel 2004 si distingue per la sua funzionalità e disposizione degli ambienti. Al piano terra, l'ingresso conduce a un soggiorno luminoso e a una cucina abitabile ideale per momenti conviviali. La zona notte, praticamente sullo stesso piano, comprende tre camere spaziose e ben illuminate, un ripostiglio e due bagni; al piano primo la possibilità di ottenere una quarta camera dotata di bagno e antibagno. Completano la proprietà un giardino privato, che garantisce uno spazio esterno per il relax, un garage doppio ed una grande taverna che viene lasciata completamente arredata,inoltre una lavanderia e un bagno dedicato per la taverna. L'immobile si trova in un quartiere residenizale molto tranquillo ed esclusivo, ben collegato ai principali servizi ed infrastrutture del comune. Questa soluzione abitativa rappresenta un'opportunità perfetta per una famiglia. L'abitazione è inoltre dotata di un porticato per pacheggiare un camper. Inoltre la casa è stata dotata di 3 kw/h di fotovoltaico.

Mostra tutto

Nelle vicinanze

Trasporto pubblico Trasporto pubblico
Linea n° 9
Linea n° 9
330 m
Trasporto pubblico
510 m
Ricariche auto elettriche Ricariche auto elettriche
Iper Tosano Costabissara | EnelX
1,4 Km
Costabissara Strada del Pasubio | EnelX
1,6 Km
Scuole Scuole
Scuole
470 m
IC Caldogno
480 m
Scuola Media Dante Alighieri
660 m
CSM Centro Studi Musicali
770 m
Scuola primaria "E. De Amicis"
1,5 Km
Farmacia Farmacia
Farmacia
220 m
Farmacia Comunale di Motta
1,3 Km
Ospedali Ospedali
Centro Diagnostico Veneto
640 m
Supermercati Supermercati
Eurospar
700 m
Prix
800 m
Tosano
1,4 Km
Eurospin
2,3 Km
Supermercati
2,8 Km
Negozi Negozi
Panificio Zenere
140 m
Zenere
540 m
Panificio Meggiorin
600 m
Boutique Rossella
1,3 Km
Thomas ABC
2,0 Km
Bar Bar
Luxury Bar
50 m
Bar Enal
120 m
Stegagnolo
150 m
Bar
500 m
Da Silva e Doriano
600 m
Ristoranti Ristoranti
La Pizza del Cuore
540 m
Al Molin Vecio
1,2 Km
Il Cantuccio
1,3 Km
Al Marinante
1,9 Km
Agrturismo El Gran
3,0 Km
Mostra tutto

Caratteristiche

Rif.:
61189843
Piano:
1 di 2 (Piano su più livelli)
Box:
2
Posti auto:
2
Balconi:
4
Terrazzi:
1
Mostra tutto
Prezzo Prezzo
€ 388.000
Rata mutuo Rata mutuo
€ 1.842 / mese
Spese annue Spese annue
€ 0
Proponi il tuo prezzoProponi il tuo prezzo

Classe Energetica

Questo immobile è esente da classe energetica
Anno di costruzione:
1992
Riscaldamento:
Autonomo
Tipo impianto:
A radiatori
Tipo alimentazione:
Metano

Prezzo ridotto di €1 (3%%)

Ti interessa visionare l'immobile?

Fissa un appuntamento  Fissa un appuntamento

Richiedi informazioni

Clicca su Leggi per aprire l'informativa
* Questi campi sono obbligatori

Calcola il tuo mutuo

Semplice e senza impegno
Anticipo

( % )
Mutuo

( % )

pochi semplici passi

inserisci i tuoi dati
Questionario completato
Grazie per aver richiesto un appuntamento senza impegno con un nostro Consulente del Credito e Assicurativo.

Hai inserito correttamente tutti i dati necessari e a breve riceverai una e-mail con un link da convalidare per inviare i tuoi dati.
Affiliato
Studio Raffaello Srl
Via Dante, 61 36030 Caldogno (VI)

Il nostro staff


  • Lorenzo Azzalin
    Affiliato

  • Nadia Carretta
    Collaboratrice
Via Dante, 61 36030 Caldogno (VI)
Zona: Caldogno - Costabissara-Rettorgole-Motta
Mostra su mappa
Orari: lunedì-venerdì 9.00/12.30 - 15.00/19.30; sabato 9.00/12.30
Affiliato
Studio Raffaello Srl
Via Dante, 61 36030 Caldogno (VI)

2026 Tecnocasa Franchising S.p.A. - P. IVA 08365160152 - Via Monte Bianco 60/A 20089 Rozzano (MI). Ogni agenzia ha un proprio titolare ed è autonoma. Privacy policy | Policy utilizzo | Cookie policy