Trilocale in vendita

Isola Vicentina, Via Carpaccio
€ 178.000
3 locali 3 locali
100 Mq 100 Mq
2 bagni 2 bagni

Trilocale in vendita

Isola Vicentina, Via Carpaccio

Descrizione annuncio

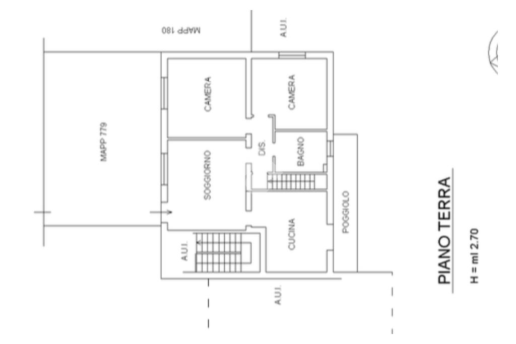
Isola Vicentina - proponiamo alla nostra gentile clientela, un appartamento al piano terra con ingresso indipendente, giardino di pertinenza esclusiva, comunicante direttamente con il garage senza passare per ambienti comuni.

L'unità immobiliare è composta da un luminoso soggiorno, da una cucina separata con accesso diretto ad un terrazzo esclusivo, due camere da letto di cui una matrimoniale e l'altra di dimensioni generose, un bagno finestrato. Al piano seminterrato si accede tramite una scala interna e sono presenti: il garage ampio ma con spazio per una sola auto, una cantina e un secondo bagno (realizzato nei primi anni 2000). Caldaia e radiatori sono stati sostituiti di recente.

Soluzione immobiliare razionale nella distribuzione,con costi di gestione molto bassi, situata in una zona centrale della frazione di Castelnovo.

Il giardino da considerare come plus.

Mostra tutto

Nelle vicinanze

Ricariche auto elettriche Ricariche auto elettriche
Iper Tosano Costabissara | EnelX
2,9 Km
Scuole Scuole
Scuole
220 m
Scuola Materna
450 m
CSM Centro Studi Musicali
2,2 Km
Farmacia Farmacia
Farmacia
270 m
Framacia Igea
520 m
Ospedali Ospedali
Centro Diagnostico Veneto
2,4 Km
Supermercati Supermercati
Penny Market
500 m
Tosano
2,8 Km
Negozi Negozi
Negozi
580 m
alimentari Casara
1,8 Km
Benetti pane
2,9 Km
Boutique Rossella
3,0 Km
Bar Bar
Birrone
380 m
Mada Cafè
570 m
Bar
920 m
Alla Pesa
1,8 Km
Bar Faggin
1,9 Km
Ristoranti Ristoranti
La Fazenda
1,7 Km
Pizza Cerea
2,1 Km
Pizzeria 2 Lanterne
2,3 Km
Ristoranti
2,3 Km
Green pizza
2,4 Km
Mostra tutto

Caratteristiche

Rif.:
61173422
Piano:
2 di 2 (Piano terra)
Box:
1
Posti auto:
2
Terrazzi:
1
Camere da letto:
2
Mostra tutto
Prezzo Prezzo
€ 178.000
Rata mutuo Rata mutuo
€ 831 / mese
Spese annue Spese annue
€ 0
Proponi il tuo prezzoProponi il tuo prezzo

Classe Energetica

Questo immobile è esente da classe energetica
Anno di costruzione:
1980
Riscaldamento:
Autonomo
Tipo impianto:
A radiatori
Tipo alimentazione:
Metano

Ti interessa visionare l'immobile?

Fissa un appuntamento  Fissa un appuntamento

Richiedi informazioni

Clicca su Leggi per aprire l'informativa
* Questi campi sono obbligatori

Calcola il tuo mutuo

Semplice e senza impegno
Anticipo

( % )
Mutuo

( % )

pochi semplici passi

inserisci i tuoi dati
Questionario completato
Grazie per aver richiesto un appuntamento senza impegno con un nostro Consulente del Credito e Assicurativo.

Hai inserito correttamente tutti i dati necessari e a breve riceverai una e-mail con un link da convalidare per inviare i tuoi dati.
Affiliato
Studio Raffaello Srl
Via Dante, 61 36030 Caldogno (VI)

Il nostro staff


  • Lorenzo Azzalin
    Affiliato

  • Nadia Carretta
    Collaboratrice
Via Dante, 61 36030 Caldogno (VI)
Zona: Caldogno - Costabissara-Rettorgole-Motta
Mostra su mappa
Orari: lunedì-venerdì 9.00/12.30 - 15.00/19.30; sabato 9.00/12.30
Affiliato
Studio Raffaello Srl
Via Dante, 61 36030 Caldogno (VI)

2026 Tecnocasa Franchising S.p.A. - P. IVA 08365160152 - Via Monte Bianco 60/A 20089 Rozzano (MI). Ogni agenzia ha un proprio titolare ed è autonoma. Privacy policy | Policy utilizzo | Cookie policy